The Former Royal Naval Bunker under Hamilton House adjacent to the Entrance to the Port of Harwich at Parkeston Quay

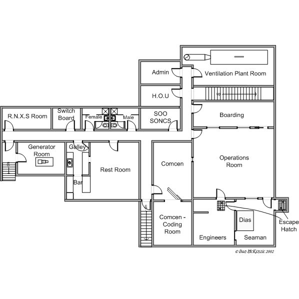
Layout Plan © Dan McKenzie
The Royal Naval Auxiliary Service (RNXS) emergency port control near Harwich.
HMS Badger was commissioned on 13th September 1939
and was the headquarters of the Flag Officer In Charge, Harwich, originally Rear
Admiral Harris and later Rear Admiral Goolden. It was initially a minesweeper
base but provided anchorage and refuelling for other vessels. By the end of 1940
it also acquired a destroyer flotilla, submarine squadron and a Coastal Forces
MTB base becoming the largest base for small craft in the UK. Upon
commissioning, the naval officer in charge (NOIC) and the base captain's offices
occupied the LNER Station Hotel and cargo sheds on Parkeston Quay. In 1940,
these moved to Hamilton House, the former Georgian customs house and an
underground operations room was opened there in 1941. A 'Q' site for Parkeston
Quay was sited at East Mersea.
HMS Badger was 'paid off' on 21st October 1946 although the underground 'ops'
room remained in Naval hands. The RNXS was formed in 1964 (See
this web site) and the bunker was refurbished and re-opened as the
emergency port control for Parkeston, Harwich, Felixstowe, Ipswich Docks and the
River Orwell. In times of nuclear war these port emergency centres would have
directed all major shipping out of a danger area and arranged access to and from
ports for friendly vessels. Navy presence in the area finished in 1966 when the
Wrabness Royal Naval Armaments Depot (RNAD) closed but the RNXS bunker remained
operational as an emergency port control until 1992.
The emergency centre lies mainly under the car park of Hamilton House, now an
occupational health centre, close to the entrance to the Harwich International
Port at Parkeston, a few miles to the west of Harwich. There are three entrances
into the bunker, the main entrance is from the basement of Hamilton House with a
secondary main entrance in the car park consisting of a three room surface
guardhouse and a stairway down to the bunker; there is a small ventilation shaft
close to this entrance. On the opposite side of the car park is the emergency
exit consisting of a doorway opening directly onto the staircase down into the
bunker.
The main entrance to the bunker is at the bottom of the basement stairs where
there is a gas tight door with a small glass spy hole, beyond that is a second
gas tight door forming an airlock. Between the two doors is a room on the right
hand side which houses the boiler and standby generator. Through the second door
the main corridor is to the right. The first room on the left was the RNXS
office which is empty. The next room was the BT room this still retains a number
of junction boxes on the wall. Next are the female and male toilets, both are
identical with one WC cubicle, a shower and a wash basin.
On the right hand side the first room is the galley with a serving hatch into
the adjacent canteen/rest room. The galley still has its sink and draining
board, wooden units, food preparation table and a tiled wall. From the galley a
door leads into the bar with a long counter and shelves behind where a till was
located. The spacious rest room is empty. Beyond these rooms a corridor to the
right leads to the emergency exit stairs. To the left of this corridor is the
'communications centre' consisting of two rooms. The inner room has a
combination lock on the metal door with a notice, 'This area is part of an
electronically secure zone. Electrical
equipment must not be added to or re sited in this area without approval of NSTA'.
Inside this secure room there are a number of fuse boxes on the wall and a small
cabinet containing two interference capacitors which would have given the wiring
ENP protection. This would have been the coding room.
The main corridor turns left at the end with three small rooms on the left, each
linked by a small message window. The first is 'Staff Office Operation' (SOO)
and 'Senior Officer Naval Control Service' (SONCS). The next room is Head of
Unit, i.e. the head of the RNXS unit based at Harwich and the final room is the
'administration office'. On the right hand side of this third corridor the
first room is the large 'Operations Room' which has a small message window into
the communications centre and large windows into the adjacent rooms on either
side. On the right hand side of the operations room are two further rooms one
has a wooden dais on the floor and this was the 'seamen' room, the second room
has a large blackboard on one wall and was
the 'engineers' room. The engineers are the mechanical and electrical engineers
on a ship and the seamen are those who run a ship and take it to war. Both these
rooms have a recessed escape hatch in the ceiling. On the left of the operations
room is another large room, the same length as the operations room and half the
width, this was the 'boarding room', new orders for ships would have been issued
from here. Beyond the boarding room there is a short corridor to the stairs up
to the main exit into the car park. The final room at the end of the third
corridor is the ventilation and air handling room. This is another large room
with the main ventilation plant
and trunking along one side and the control cabinets on the opposite wall.
All the plant is still fully operational and was running at the time of our
visit as it also serves Hamilton House above.
The bunker is completely empty and unused with some damp patches on the carpets.
Lighting still works in the majority of the rooms and corridors which have all
largely been stripped apart from ventilation trunking.
Report © Nick
Catford